更新时间:
2025-12-20
建发央著
-
楼盘均价 :
房贷计算器 7000元/㎡
报价时间:2025-12-20,有效期30天,为参考价,具体以开发商为准!
- 开盘时间 :
- 建筑面积 :
- 占地面积 :
- 楼盘地址 :
订阅消息将通过短信及推送等形式通知您
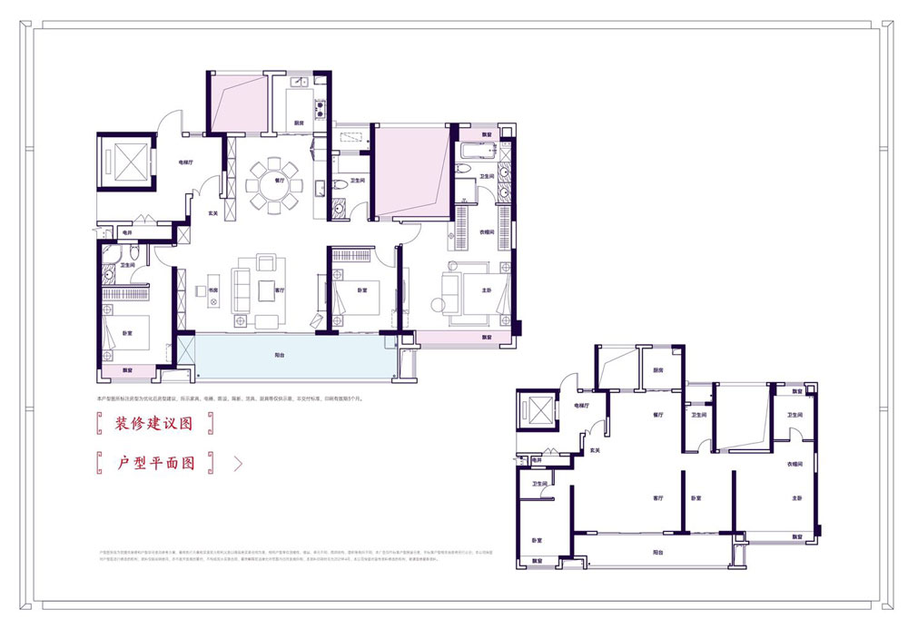
主力户型
查看全部楼盘介绍
益阳建发央著位于益阳大道万达广场北侧,建筑面积:33.5万方,占地面积:9.58万㎡,总户数:2301,容积率:3.5,绿化率:35%,开发商是益阳悦发房地产有限公司。
您可能感兴趣的楼盘
更多
免责声明:本网站宗旨为广大用户免费提供信息服务,数据来源互联网,本站不声明或保证所展示的信息准确性和完整性,仅供参考使用。购房者参考本站信息,进行房屋交易所造成的任何后果与本网站无关。网站所提户型面积均指建筑面积。投诉电话:400-0736-088









